Magnifiques surfaces à deux pas de la Gare CFF de Renens

Profitez d'une adresse de premier choix au coeur de l'ouest lausannois, dans un immeuble neuf alliant modernité et performance énergétique. Situés à la Route de Bussigny 2, ces espaces modulables de 180 m2 à 650 m2 offrent un cadre de travail idéal pour dynamiser votre activité.

Points forts de l'emplacement 

- Accessibilité exceptionnelle : A proximité immédiate de la gare CFF de Renens 
  (environ 4 minutes) et futur arrêt de tramway "Renens Gare" juste en face.

- Proximité autoroutière : Accès rapide aux axes majeurs, facilitant les déplacements de vos collaborateurs et clients.

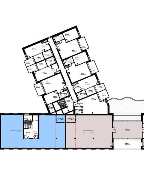
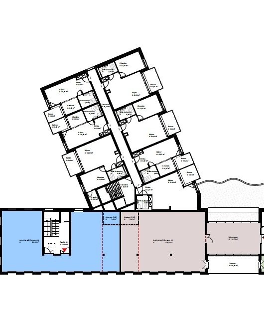
Caractéristiques des surfaces

- Surfaces disponibles :
  1er étage 265 m2
  2ème étage 180 et 210 m2 avec possibilité de regrouper les surfaces

- Luminosité : Superbe exposition avec façade plein sud garantissant une lumière
  naturelle optimale tout au long de la journée.

- Aménagements : Surfaces louées brutes permettant une personnalisation totale
  selon vos besoins (bureaux individuels ou open-space).

Dépôts et places de parc intérieures disponibles en sus.

Intéressé (e) ? La visite vaut le détour.

Sauf erreur ou omission. Photos et descriptif non contractuels.
200 m
Transports publics
1.5 km
Commerces de proximité
1.8 km
Centre ville
eckdaten Ascenseur
Garage Garage / Parkplatz

Autres objets de Régimo Lausanne